Shugoin: la casamatta di mattoni che dialoga con Tokyo
Ecco come il progetto dello studio Love Architecture mette a contatto spazi pubblici e privati. A partire da vuoti e pieni della facciata.
A prima vista sembra quasi una casamatta: complici le feritoie realizzate con la posa dei mattoni a vista.
In realtà, il complesso dello Shugoin è tutt’altro che impenetrabile, e proprio il suo dialogo con il contesto urbano di Tokyo è il tratto distintivo di questo progetto ideato dallo studio giapponese Love Architecture.
Da un lato, le sue facciate e la loro compatta solidità (in contrasto con la presenza di costruzioni più effimere) filtrano rumori e luci, lasciando all’esterno il trambusto cittadino. Ma dall’altro, il manufatto accoglie la città stessa al suo interno, materialmente, con un passaggio pedonale che attraversa il piano terra dell’edificio e collega i lati nord e sud dell’isolato, stretto tra una superstrada e un centro commerciale.
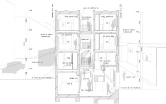
L’ atrio interno è infatti il cuore del progetto. Anche dal punto di vista concettuale. Se a livello del terreno ospita il passaggio che mette a contatto spazi pubblici e privati, e gli ingressi di due negozi, ai piani superiori dà l’affaccio ai balconi e alle finestre degli appartamenti. I camminamenti che li collegano sono solo due: in questo modo, l’atrio resta aperto nella parte superiore e il cielo è sempre a vista.
La cortina esterna in mattoni a vista dà forma, solidità e presenza materiale all’edificio. La sensazione monumentale è accentuata dal contesto: una città dove al contrario le case sono spesso “usa-e-getta”.
Non a caso, ancora una volta l’idea di persistenza è tradotta nella scelta del mattone, materiale associato per antonomasia al concetto della costruzione e della sua durata.
Ma sono interessanti anche i presupposti funzionali e scenografici con cui gli architetti lo hanno usato.
Abbiamo detto che la facciata in mattoni a vista è uno schermo o diaframma che tutela gli spazi privati dal chiasso esterno (architettonico, oltre che sonoro). Ma non solo. La tessitura forata serve anche a modellare la luce, che filtra puntiforme all’interno degli appartamenti – e, come spiega l’architetto Yukio Asari, richiama la luce che filtra attraverso le fronde degli alberi.
Proprio per accentuare la componente naturale e umana del manufatto, gli architetti hanno voluto che un incaricato fosse sempre presente durante i lavori, per verificare che l’esecuzione fosse volutamente “irregolare” – se guardate bene, vedrete che i giunti non sono stilati, ma solo spazzolati: espediente usato proprio per riprodurre una maniera più antica e rustica, che in Italia si vede nel labirinto culturale di Fontanellato.
Il progetto è stato concluso nel 2013. C’è stata subito molta richiesta per gli appartamenti – amplificata anche dall’interesse suscitato nei media dal progetto. Difatti per Yukio Asari, «dato che i progetti su larga scala sono nelle mani degli operatori più grandi, gli architetti possono partecipare alla riqualificazione urbana e sollevare interrogativi sulla società più efficacemente attraverso condomini di piccole dimensioni».
Scheda
Data di ultimazione: dicembre 2013
architetti: Love Architecture / Yukio Asari
Superficie dell’area 182,64 m2
Superficie calpestabile: 514,56 m2
Destinazione: appartamenti e negozi
Fonti
Immagine:
Hai bisogno di informazioni? chiamaci al +39 02.91084240 o scrivici a info@candelacostruzioni.it.


![Il mattone nell’architettura cinese contemporanea: 3 esempi [facciavista #16]](http://www.candelacostruzioni.it/blog/wp-content/uploads/2017/05/20_鸟瞰-340x213.jpg)












![Il mattone nell’architettura della riqualificazione [#14]](http://www.candelacostruzioni.it/blog/wp-content/uploads/2017/01/ML_A_BSH_Docklands_16143-17©LuukKramer-340x213.jpg)
![Trame – Mattoni a vista sul web [#13]](http://www.candelacostruzioni.it/blog/wp-content/uploads/2016/10/reseta-zonnewende-theatre-hall-architecture-brick-netherlands_dezeen_hero-b-340x213.jpg)